Свободные помещения
Дата обновления раздела
19.02.2026
19.02.2026
Для подписки
на рассылку предложений о свободных помещениях сети БЦ "Бастион"
отправьте Ваш E-mail
на рассылку предложений о свободных помещениях сети БЦ "Бастион"
отправьте Ваш E-mail
Избранное
БЦ "Литовская, 10"
Россия, Санкт-Петербург, ул.Литовская, 10
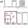
Помещение: 3313
34.00 кв.м.
Этаж: 3 этаж
Статус: свободно
Сеть БЦ Бастион предоставляет офисное помещение 34.00 кв. м.
ст. м. Выборгская и Лесная.
Выборгский район.
К услугам арендаторов: развитая инфраструктура, видео наблюдение, противопожарная система, круглосуточная охрана, пропускной режим, парковка, столовая, кафе быстрого питания.
Работаем с НДС. При необходимости предоставляем юр. адрес.
В нашей сети Бизнес-центров (ул. Литовская 10, ул.Менделеевская 9, ул.Руставели 13, ул.Карпинского 38к1), вы можете арендовать офисы от 10 до 200 кв.м., производственные и складские помещения от 50 до 1000 кв.м.
Подробности по телефону.